津市市全灵加油站升级改造建设项目周边利害关系人:
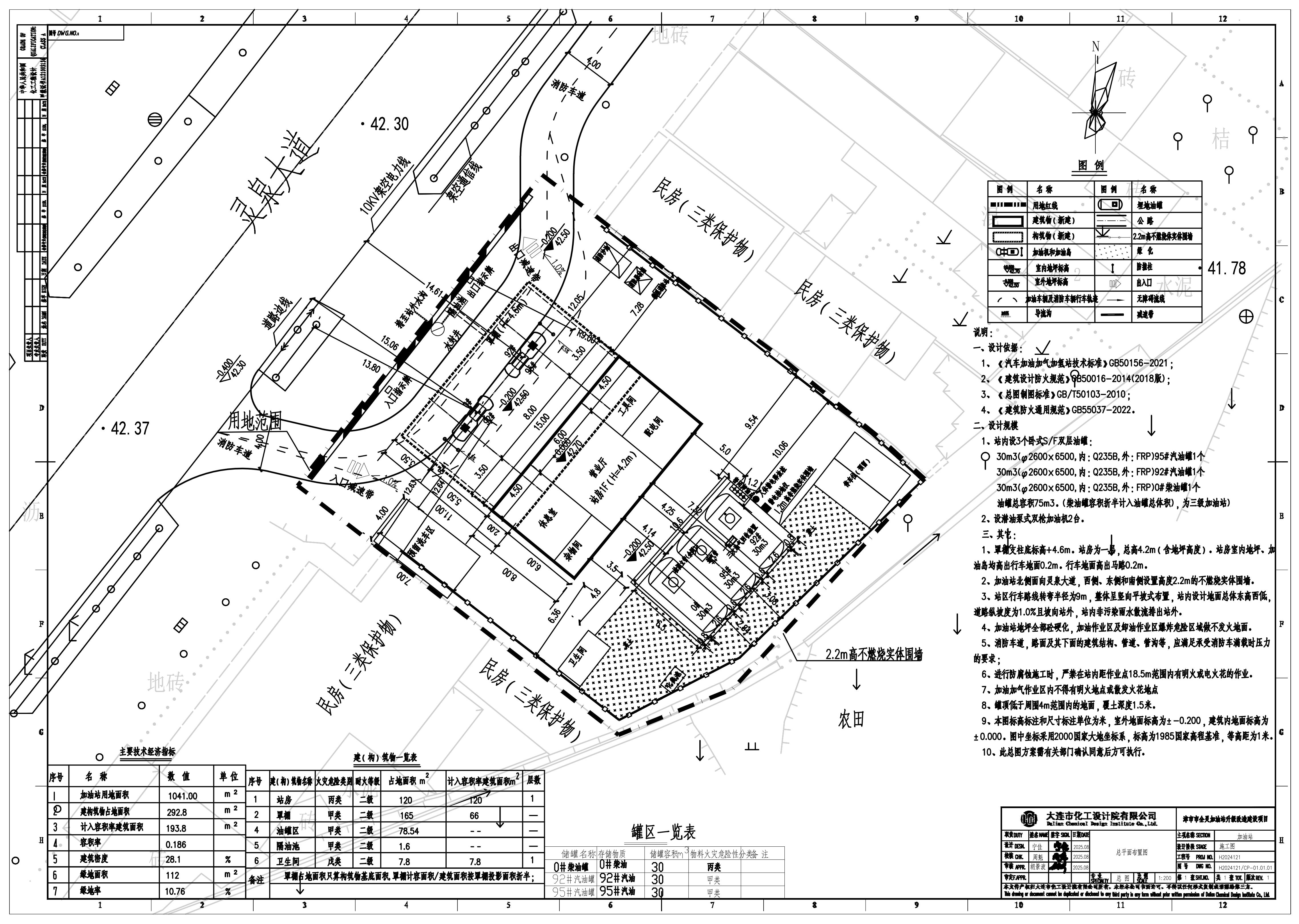
津市市全灵加油站升级改造建设项目位于津市市新洲镇灵泉大道(原灵泉农机加油站),项目内容:对公厕及相关设施等位置进行调整。
该项目于2024年10月31日--2024年11月8日进行了现场批前公示,公示期间未收到相邻住户及社会公众意见。2025年3月10日办理了建设工程规划许可证。为进一步优化加油站使用功能,建设方申请对公厕及相关设施等位置在满足相关规范的情况下进行调整,根据《中华人民共和国城乡规划法》有关规定,我局现将该项目总平图予以公示。你们对该项目有何意见和建议,请自本公示公布之日起7个工作日内(2025年8月14日--2025年8月22日下午5:30止),向我局反映。如申请听证,请于公示期内向我局提出申请。期满如无异议,我局将依法依规予以行政审批。
联 系 人:王辉 联系电话:0736-4223372


